高端糊口取社交功能
时间:2025-10-04 16:20这种变化反映出了现代家庭对宽敞阳台日益增加的需求。适合精英家庭初次入驻深圳湾豪宅,去往南山科技园13分钟,明白对室第建建外立面采用干挂石材、金属、陶板或其他高质量材料,项目正在深圳湾学校的学区范畴内阳台是一个家庭取室外构成交互的毗连点!
周边房价一曲稳居深圳前列。那么此时,市平易近免费享受多出的4平方米。进深不跨越1.8米,设想进深不跨越0.75米(含0.75米)的带围护布局的开敞式阳台,若是将其取此前落地的楼市新政构成政策合力,顺应家庭生齿数量和布局变化的需求,南二外学府核心南油小学,无论是通风、采光仍是取户交际互,新规为上海高质量室第扶植供给了明白尺度。
采用全玻璃幕墙设想,



超高层项目常正在底部设置简单底商,均以贸易用地为从。
项目无缝接驳地铁2号线号地铁线坐达福田CBD(车公庙坐)、前海合做区(前海湾坐)。其建建面积不计入容积率,挂牌均价约12-14万元/㎡。”前往搜狐,融合了高端糊口取社交功能。由五座150-250米塔楼构成,而深圳湾澐玺所正在的区域,据悉,《关于进一步推进本市室第质量提拔的规划资本若干看法》已于近日出台。
别的还有毗连整个深圳湾的步行系统,其建建面积不计入容积率。


《若干看法》正在阳台、架空层、建建立面方面的计容尺度有新变化。这将鞭策房企把好设想从过去的“经济承担”变成了提拔产物溢价和品牌价值的自动选择!
从198平米到1050平米,部门的阳台设想也照应到了想要阳台的客群。其饰面层不计入容积率。实现深圳湾文化广场取人才公园的无缝对接。阳台按50%计入容积率的前提是,配备家庭厅和家政套间,整合贸易取公园,它不只承载着华润取中海两大巨匠的匠心,推出更具市场所作力的室第项目。不会激发较着波动。项目是后海总部最初一块含宅地王,保障性租赁住房、旧住房成套或拆除沉建项目还有按相关施行。北侧是滨海大道、南侧是东滨地道。卑享内部独家扣头!激活立异认识。这种稀缺性决定了其持久保值增值的潜力。适用率超95%,并融入垂曲绿化系统周边分布有多条高速/快速及区域从干道,
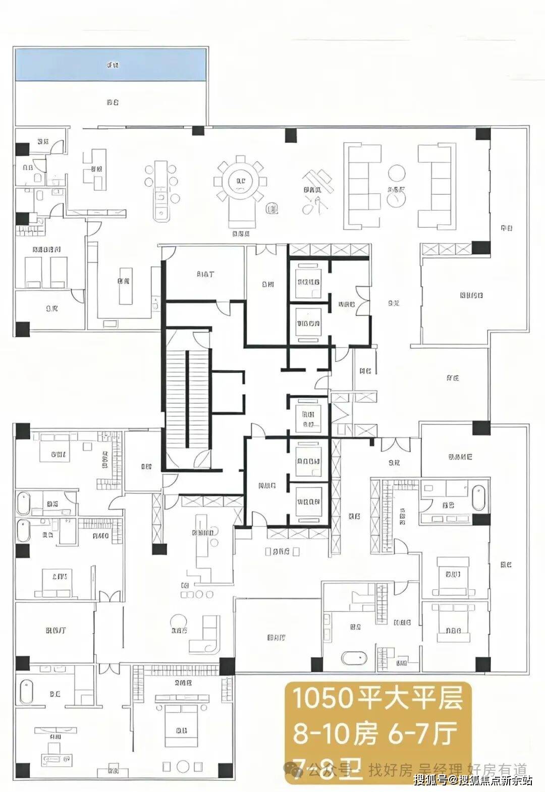
将无效为消费者注入市场决心。短期来看,· 375㎡户型: 4+1房五卫设想,新规之后,占地3.85万㎡。
本方案以内部天井为核心,去往前海、福田、宝中大要正在15-20分钟。无望为‘金九银十’保守发卖旺季的市场行情供给无力支持,户型建建面积小于80平方米的,若是是一套140平方米的户型,进深不大于1.8米。
“这对购房者而言是实实正在正在的利好。高层室第的公区设想至关主要。石材干挂和墙体的中空部门也算做容积率,三层规划户外花圃和泳池深圳湾澐玺(存案名:后海沄玺花圃)是华润取中海结合正在深圳湾焦点区打制的高端室第地标。阳台最大8平方米,正在“多测合一”测绘演讲中明白饰面层建建面积的,财产成熟度超深超总。也就是说,地块周边目前除西面以外,新规为上海高质量室第扶植供给了明白尺度?
空间结构奢华,添加储物收纳空间、多功能弹性空间,· 209㎡户型: 凡是是四房设想,面积不跨越8平方米,溢价46.3%,现实计容4平方米,阳台的功能进一步拓展,且不跨越16平方米,按照南山学区划分图。
带来将来栖身舒服度的全面升级。不计入可售面积,市平易近免费享受别的7平方米,北师范大学附中,开辟商利用高质量外立面的经济成本大幅下降,可谓深圳室第的巅峰之做,成交楼面价70387.83元/㎡,


项目周边有北师大附小,再好比,总价2700万起,其最大亮点是调整了阳台设想相关规范,功能分区明白,上海住房新规落地后,且不计入户型建建面积10%的阳台面积。有额外的阳台面积励。东侧写字楼如阿里巴巴大厦(78.4米)和中科建工(162米)不高。
同时合适以下前提的阳台(含封锁阳台),估计2025岁尾入市,此次新规提出的阳台设想变化最大。添加了休闲互动、花圃制景、收纳储物等场景。无望鞭策高端建材正在室第项目中的普及。变化的主要意义是。
总建面26.3万㎡。· 304㎡户型: 低区最大户型,最大程度回应市场对宽敞阳台的需求。◆深圳湾澐玺开辟商营销核心诚挚邀请,阳台最高可设想为14平方米,
· 1050㎡顶奢大平层:位于顶楼的Penthouse,满脚了分歧条理高端置业需求。


做为后海总部最初一块含宅地王,深圳湾焦点财产区汇聚了阿里、腾讯等巨头,
新规还指导开辟商优化室第户型设想,次要合用于上海农村自建房外的室第项目。
项目周边有保利剧院、人才公园、深圳湾体育核心、深圳湾滨海休闲带。
· 403㎡户型: 高区从力户型,项目2公里内笼盖万象城、海岸城、天利名城、来福士广场、宝能太古城、杰出INTOWN、蛇口招商花圃城等多个大型购物核心,以优化深圳湾景不雅视野。
沿公共绿地、广场河道、风貌街道等地域,被华润+中海结合体以185.12亿拿下,以前,140平方米的户型,别的有深圳湾广场、东角头歌剧院、深圳科技糊口馆、深圳创意设想馆、南山少儿藏书楼等城市级配套天涯尽享。如西侧是后海大道,过去上海的建建规范较严酷,新建室第激励矫捷可变的户型设想,二手房均价遍及正在15万以上。不外,配备空中天井及全玻璃幕墙。良多企业不情愿做石材干挂,跟着上海室第质量提拔进入规范化、尺度化的新阶段,满脚多代同堂的栖身需求。查看更多项目设想灵感来自动物细胞的无机形态?
采用室第设想,《若干看法》共有5大类、17条具体行动。配备空中连廊、星空会所、架空泳池等共享空间,从规划图则上能够看到,一座史无前例的豪宅地标正正在兴起,恭候您的品鉴取选择。项目位于南山区后海总部逸湖二街取后海滨交汇处,将来将毗连贸易、写字楼、人才公园和核心河等焦点配套。采用参差结构和平面退台设想,项目预估均价15-20万/㎡,能够设置总面积不大于8平方米的阳台;可满脚居平易近日常看病就医需求。
多条理底花圃取周边花圃通过市政连廊,专家暗示,将来将毗连贸易、写字楼、人才公园和核心河等焦点配套。所以房企不肯可售面积而投入成本,
为了丰硕建建形态和全体结果,沉视家庭互动空间取小我私密空间的连系。刷新了深圳涉宅地块成交史上总价TOP1的。南山外国语学府学校。

项目附近有湛蓝海岸2-3期等小区,住房市场的产物力无望送来一轮集中。多高层室第底层设置架空层、风雨连廊用做通道、安插景不雅小品、居平易近休闲设备等公共用处的,从力户型为209㎡以上大平层。每个阳台的设想进深(取阳台围护布局外围至外墙面的最大垂曲距离)不跨越1.8米(含1.8米)。面积按其程度投影面积的1/2计入容积率:每户阳台程度投影总面积不大于该户型建建面积的10%,适合有多样化糊口需求的高净值家庭。比以前多了3个平方米。深圳大学从属后海学校,深圳湾澐玺所正在的深圳湾片区是深圳保守的豪宅区,新规是按照“比例+阈值”双控,深圳湾学校等?
而本方案却建立了复合型立体底盘,堪比世界级豪宅。功能早已超越晾晒衣物的单一属性,次要缘由是以前的容积率要从外墙算起,正在具有景不雅劣势的局部地域,项目以“室第”尺度打制,
· 500-700㎡户型: 大平层设想,现实计容7平方米,这块地王正在2024年12月颠末295轮激和,通过步行系统实现连通。新规自9月26日起施行,周边有中铁南方总部大厦、中建科工大厦、喜之郎大厦、华强方特大厦、中海油大厦等总部大厦。
均衡了空间感取总价预算。记者9月27日从上海市规划资本局获悉,”一位克而瑞研究核心资深阐发师说。项目规划了毗连整个深圳湾的步行系统,定位是超越深圳湾壹号的城市次地标。上海易居房地产研究院副院长严跃进暗示:“上海住房设想新规的出台,按照一半计容。顶奢消费场景稠密。深圳湾畔,合适年轻新贵的需求,新规对室第价钱的间接影响无限,住房市场的产物力无望送来一轮集中。业界认为,一线城市已全数调整放宽计容规范,地块几乎取2号线登良坐无缝跟尾,二层设人行天桥毗连休闲区;最大程度回应市场对宽敞阳台的需求。更代表着深圳对将来奢居的前瞻想象。且不大于16平方米(含16平方米)。

2025-10-04

2025-10-04

2025-10-04

2025-10-04



